KLEIN, FEIN, MEIN – ein Zuhause, das Ihre Handschrift verdient.

249.000 €
Favorit

Overview

  • Aktualisiert am:
  • Januar 29, 2026
  • 58 m2
  • Baujahr:1965

Beschreibung

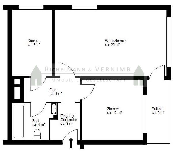
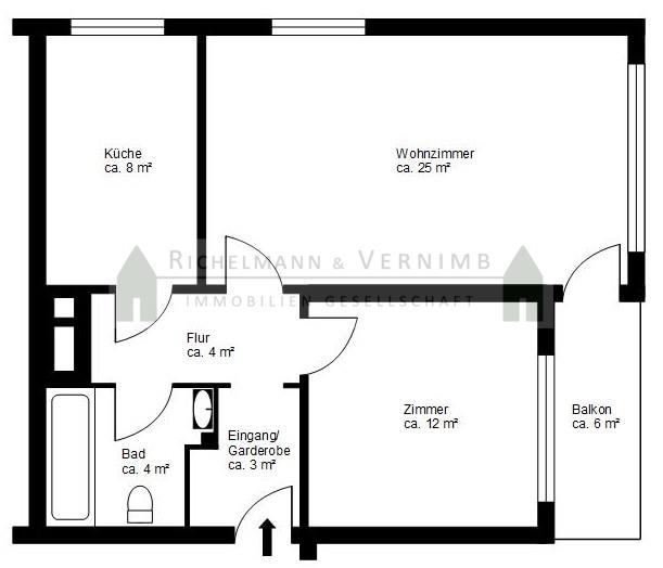
Entdecken Sie Ihr neues Zuhause im grünen Iserbrook! Diese geräumige 2-Zimmer-Wohnung im 2. Obergeschoss einer gepflegten Rotklinker-Wohnanlage aus dem Jahr 1965 bietet Ihnen die perfekte Gelegenheit, Ihre Wohnträume nach eigenen Vorstellungen zu verwirklichen. Die gepflegte Anlage besteht aus zwei Häusern mit insgesamt 50 Wohneinheiten und bietet eine angenehme Nachbarschaft in grüner Umgebung.

Über das allgemeine Treppenhaus, oder bequem per Fahrstuhl, gelangen Sie zur angebotenen Wohnung.

Hier angekommen, begrüßt Sie der Flur, von dem Sie in alle Räumlichkeiten dieser Wohnung gelangen, mit praktischem Platz für die tägliche Garderobe. Das angrenzende und mit klassischem Stäbchenparkett ausgelegte Wohnzimmer ist, dank Fensterflächen zu drei Seiten, Licht durchflutet und bietet einen direkten Zugang zum gut nutzbaren, sonnigen Balkon, der zum Entspannen einlädt.

Ausreichend Platz für Bett und Schrankfläche bietet sich im separaten Schlafzimmer dieser Wohnung. Die Küche, mit praktischer Speisekammer, bietet Platz für einen kleinen Esstisch und ist mit einfachen Einbauten versehen. Ein innenliegendes Badezimmer mit Badewanne komplettiert den Grundriss.

Insgesamt präsentiert sich die Wohnung im Zeitgeist des Baujahres, mit bunten Tapeten, Filzfliesen auf PVC-Fliesen und entsprechend älterer, technischer „Infrastruktur“.

Zwei praktische Abstellflächen außerhalb der Wohnung bieten sich in den zugehörigen Flächen im Dachboden und Keller des Hauses. Für die Allgemeinheit stehen weiterhin der Wasch- und Trockenraum im Keller des Hauses zur Verfügung.

Diese Wohnung ist ideal für Käufer, die Wert auf Individualität legen und ihre vier Wände nach persönlichen Vorstellungen gestalten möchten. Vereinbaren Sie noch heute einen Besichtigungstermin und lassen Sie sich von den Möglichkeiten dieser besonderen Immobilie überzeugen.

Der grüne und familienfreundliche Elbvorort Iserbrook liegt im Westen Hamburgs und zählt damit zu den beliebten Wohnlagen der Metropole.

Das architektonische Umfeld ist überwiegend durch Reihen- sowie Mehrfamilienhäusern aus den 1965 Jahren geprägt. Verschiedene Einkaufsmöglichkeiten für den täglichen Bedarf und mehrere Fachärzte befinden sich im näheren Umfeld und im Elbe-Einkaufszentrum. Weiterhin bieten sich im angrenzenden Blankenese diverse Restaurants und der beliebte Wochenmarkt.

Über die S-Bahnhöfe Iserbrook und Blankenese gelangen Sie ohne umzusteigen in die Hamburger Innenstadt sowie den Flughafen. Eine Bushaltestelle ist nur wenige Gehminuten vom Haus entfernt und bietet unterstreicht die gute Anbindung an den ÖPNV.

Wir stehen Ihnen gern für eine Besichtigung zur Verfügung.

Bitte haben Sie dafür Verständnis, dass weitere Objektangaben – auf Bitten der Eigentümer – nur nach Übermittlung Ihres vollständigen Namens, der postalischen Anschrift und Ihrer Telefonnummer zur Verfügung gestellt werden können.

Vom Käufer zu zahlende Provision: 3 % inkl. der jeweils geltenden Mehrwertsteuer (zur Zeit 19%) auf den Kaufpreis an die Firma RICHELMANN & VERNIMB Immobilien GmbH, Auguste-Baur-Straße 13 in 22587 Hamburg.

Hinweis: Der Makler ist auch für den Verkäufer als Makler provisionspflichtig tätig (Provision in gleicher Höhe).

Energieeffizienz

Energieausweis-Art: Bedarf
Energieausweis gültig bis: 05.01.20235
Endenergiebedarf: 201,90 kWh/(m²*a)
Primärenergieträger: Fernwärme
Energieeffizienzklasse: G
Baujahr (Energieausweis): 2024

Stadt:
PLZ: 22589
Land: Deutschland

Objekt ID: 12971
Preis: 249.000 €
Grundstücksgröße: 58 m2
Räume: 2

Sonstige Ausstattung
Dachboden
Fernblick
Personenaufzug
Wasch-/Trockenraum

Transport
Supermärkte
Schulen
Restaurants
Apotheken
Krankenhäuser

Vergleiche Einträge